York Region North District Road Winter Maintenance Facility - EnerPHit Net Zero Carbon Retrofit
Client: Entuitive
Standard: EnerPHit Net Zero Carbon
Phase: Feasibility
Location: Georgina, Ontario
Area: 724.8 m²
Architectural rendering of the York Region North District Road Winter Maintenance Facility Retrofit.
Next Meeting
Friday, January 16, 2026 at 3:00 PM
Project location: 3525 Baseline Road, Georgina, Ontario
Project Description
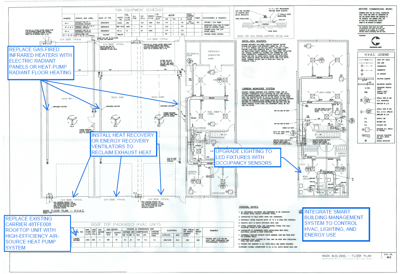
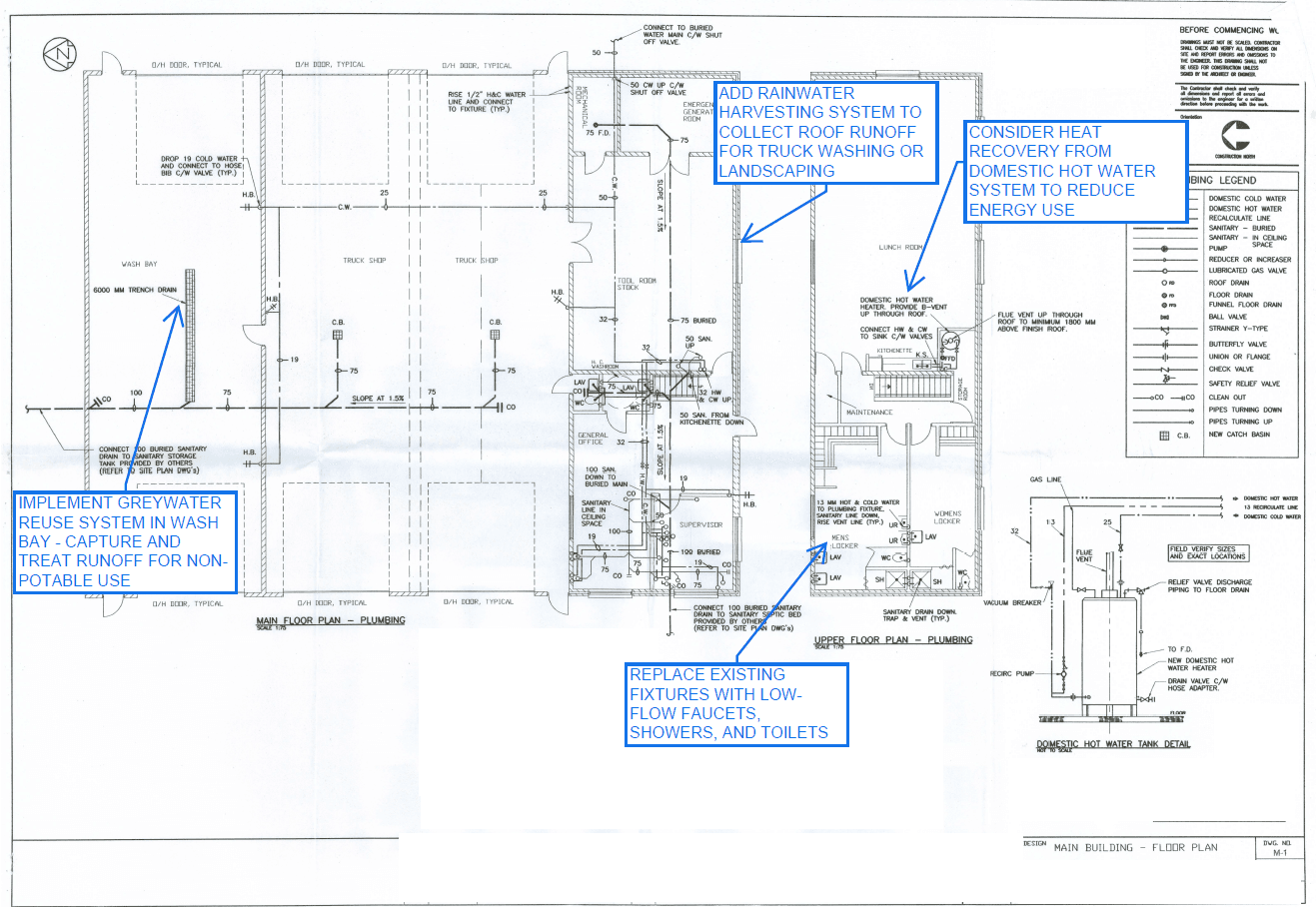
Two-storey municipal winter maintenance facility retrofit focusing on envelope upgrades, HVAC electrification, renewable integration, water efficiency, and structural considerations.
EnerPHit Target
Yes
Targeting EnerPHit
Modeled Carbon Reduction
0%
Percentage reduction achieved
Phase Status
On Track
Current project phase
Project Milestones
| Date | Milestone | Status | Link |
|---|---|---|---|
| 9/4/2025 | Project kickoff (internal) | Done | — |
| 9/8/2025 | Group E: Project Ranking Forms (due 1:00 PM) | Done | View → |
| 9/10/2025 | Group E: SoQ Memo Submissions | Done | View → |
| 9/19/2025 | Group E: Group Charter Submissions | Done | View → |
| 9/26/2025 | Client kickoff + existing info | Done | — |
| 10/6/2025 | Group E: Meeting Summary Sent to Client | Done | View → |
| 10/9/2025 | Group E: Work Plan Submission | Done | View → |
| 10/17/2025 | Peer assessment of Workplan | Planned | — |
| 10/24/2025 | Client meeting | Scheduled | — |
| 11/21/2025 | Group E: Progress Report Submission | Planned | — |
| 1/12/2026 | Group E: Poster Submission 2025 | Planned | — |
| 3/11/2026 | Group E: Final Presentations Submission | Planned | — |
| 3/20/2026 | Group E: Draft Final Report Submission | Planned | — |
| 4/17/2026 | Group E: Letter Addressing Comments on Final | Planned | — |
| 4/17/2026 | Group E: Revised Final Report Submission | Planned | — |
Project Figures
Project Renders
Project Documents
Work Plan Submission (PDF)Download →
Group Charter (PDF)Download →
Project Ranking Forms (DOCX)Download →
Statement of Qualifications Memo (PDF)Download →
Meeting Summary Sent to Client (PDF)Download →
Meeting Cadence
Internal Meetings
Mondays 9:30–11:30 AM; Fridays 9:30 AM (optional)
Client Meetings
Next: 1/16/2026 @ 3:00 PM